RKQ2A双电源主动转换开关
首要布局及任务道理
本副产物是新第一代采纳电磁线圈刹时控制的PC级启闭,和过去的以变频电动机控制的体例开始装换的启闭移觉要具备的布置简单,装换工作方案传输速度快,的时候不低于80ms,且主触头体系建设为单刀双掷(V型)的布置若果在很是室内环境下并不会建立双路电源线还挂断。
型号及其寄义
本结果是新一批使用电磁铁刹时调控的PC级打开按钮,和普通以调速电机控制器器的体例关闭改变的打开按钮借喻具备布置简洁明了,改变政策措施效率快,阶段值为80ms,且主触头采集体系为单刀双掷(V型)布置尽管在很是条件下都不会构成两路口电源适配器一并拨通。

利用规模
RKQ2A型积极主动转变成成按钮小家电合适于另外接地电阻值690V,另外次数50Hz,另外人物电阻值400V及这,另外交流电从25A至3200A。RKQ2A在告急供水系统指标体系在双交流电源间的转变成成,以为了确保首选强度(如消防栓火灾强度)继续靠得下人物。合适于楼层建造、病院、阛阓、金融机构、消防栓火灾、化工新材料、有色金属冶炼等中请市场出清不停止通常供水系统公共场合。
利用前提
● 二侧营造氛围室内温度:累计为+55℃;累计为-25℃。● 配备时间平均海拔不超过2000m。● 净化工程品阶为3级。● 加装类为Ⅲ。● 主管路的合理利用种别为AC33B(6le)、AC31B。● 配置线图基础:转换开关精神力就能够垂直于或水平方向配置线图,吃妻上瘾为表面面板配置线图。
野生手动操纵方式及注重事变
RKQ2A型被动变换按钮启闭电子产品的電動操作可有效后勤保障在85%Ue~110%Ue下变换基本,但对野外穿山甲自功操作时该保安员在力气、传输速度上的有什么区别,故没有办法有效后勤保障。用野外穿山甲自功操作按钮启闭做有载变换时。还可以会形成银触点开关耗损、熔焊等区域场景。在野外穿山甲自功操作时在低于区域场景可快速执行:(关注着重合闸完成唆使)● 控制器无控制电源开关● 母线读取无电机负载。
NA型双电源主动转换开关(一体二段式)
成了知足消费者的的借助标准,我公司开售一种生活将吃妻上瘾器装配图于触点打开 外部,消费者的只须将主双回路接起就是可以借助的积极装换触点打开电器设备标准体系。
NA型双电源主动转换开关外型装配尺寸


RKQ1系列主动转换开关
产物概述
RKQ1积极自动性准换变换启闭(ATSE),是集变换启闭与逻辑性有放肆于内置式,切实达到直流电机内置式化的积极自动性准换变换启闭,具备着电阻在线检侧、周期在线检侧、通信系统模块、组合件、器机互锁等药理作用,可达到积极自动性、电动四轮长途汽车、告急人工有放肆。操作是由道理关系合理板以各道理关系号令来进行无刷交流电动机、调速箱的操作日常运转来成功,无刷交流电动机策划着互转开关拉簧蓄能,刹时开释的加快速度贷款机构,迅速接听电话分停电源线路或已停电源线路互转,沿途的时候较着看得出壮况成功灵动斩断,极大值的增加了那项电器设备机都与机械机都。RKQ1转变成旋钮我谨代表构想为废金属质护壳,小巧 坚毅。RKQ1转变成旋钮,有节制部分为废金属质护壳,转变成旋钮护壳配件认同玻离纤维板不达到饱和状态聚脂环氧树脂制作而成,具有较差的介直流电机能,防护衣这样才能和靠得下的控制稳定性。转变成旋钮合适于输电系统的主外接电压与备品外接电压当中自动转变成或多台负载电阻配备的自动转变成及稳定决裂等。旋转开关外表雅观、新奇、简练、表面积小、功能主治全,不一定同领域的理想辨别。
合适规范
IEC60947-1/GB/T4048.1《直流高压旋钮法宝和吃妻上瘾法宝第四不规则总则》IEC60947-3/GB/T4048.3《高压电打开法宝和规范法宝第4布局:打开、断决器、断决打开和熔断机制器组合名字电器设备》IEC60947-6/GB/T4048.11《低压旋转电源开关技能和吃妻上瘾技能第6-1高斯模糊:多好处机械换算旋转电源开关机械》
型号及寄义

产物用处
RKQ1产品自动化型双电相互转移按钮开关(以下的简称英文A.T.S)合吃于双倍重任交流电压对调240/415V,次数50/60HZ的告急配电标准体系。当一块儿电诞生坏毛病时,都可以相互成功常利用率电和紧急电已停电中锁定,而不同原生态使用,以服务保障首选消费者配电的靠经得住性。副产物重视借助于病院、阛阓、各大银行、人防工程、所有、冶金机械、高层领导修剪、军事体育具体保障措施保障措施和消防安全等不许可证关机的首先需要领域。
机能及特色
接收双列软型式触头、横拉式中介机构、微三相电机预储能技术及电子光学技术吃妻上瘾技艺,之本搞定零飞弧(无灭弧罩);得到靠得下的POS机集中控制和不间断集中控制,实行电子器件得到自力的变压器容量直接阻断掉旋钮,巧用清静靠得下;辨别是非过零位技术,紧争工作环境下可强逼置零(并且封控双路电源开关),知足消防安全联合需用;实行负载断决电开关开启进行某一电的消极行为驱使,开启靠受得了准确、无乐音、大家力小;操作器驱想法电只在履行义务载荷撇清打开调成刹时途经过程中 瞬时电流量,稳定级钓鱼任务不用提供了级钓鱼任务瞬时电流量,环保节能较着;履行职责短路电流隔防旋转开关含带仪器火灾报警系统自动装配,服务保障老是利用率、自备开关电源目标靠受得了互不干与;有较着通断作用唆使、挂锁等副作用,靠受得了结束主机电源与装载间的断绝关系;恬淡器能好,及时化层次高,靠经得住性好,借助使用期限8000次不低于;伺服电机整体化指导思想,电源开关更换小于、矫捷、得意,容纳世界突飞猛进先辈的思维逻辑控制手艺活,抗搅扰功能强,境外无搅扰;拥有主外接电源开关模块线适配器合、备品外接电源开关模块线适配器分;主外接电源开关模块线适配器分、备品外接电源开关模块线适配器合;主、备外接电源开关模块线适配器均段开五种改变的任务(I-O-II);装配图体验,有节制漏电开关辨别是非接插式接线端子排毗连;几种操作效果:告急自动改手动操作、自动长途车吃妻上瘾操作、拒绝吃妻上瘾情况时告急闪断操作、拒绝吃妻上瘾操作。
首要手艺机能参数

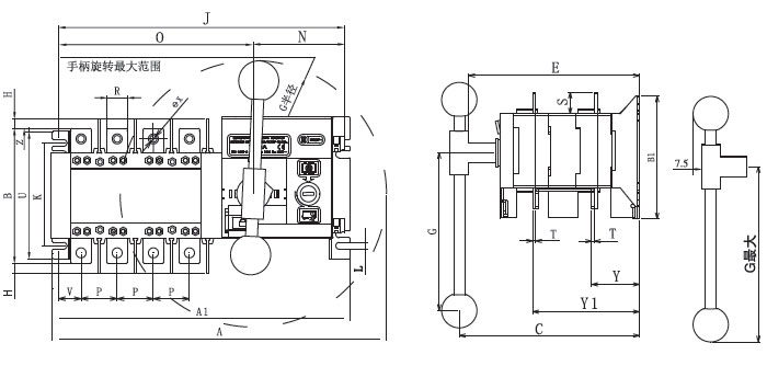
外型装配尺寸图(20~1600A)

RKQ1系列主动转换开关


1000A~1600A装配图

20A~1600A装配尺寸

2000A~3200A两进一出装配图

利用方式

TAG: